Il Tuo Rifugio Esclusivo a Sovigliana: L'Armonia di una Villa Signorile con Parco Panoramico
€ 930.000,00
Prezzo Trattabile
INFORMAZIONI SU QUESTO IMMOBILE
Se desideri per la tua famiglia un’esperienza abitativa che superi il concetto di semplice residenza, lasciati incantare da questa maestosa villa libera su quattro lati, situata a Sovigliana, nel cuore pulsante del territorio che diede i natali al Genio di Vinci. Qui, dove l’aria collinare si fonde con la comodità dei servizi di Empoli, ti offriamo l’opportunità di possedere una dimora di circa 228 mq, circondata da un resede finemente curato e da un parco privato di oltre 1.000 mq, uno spazio verde che potrai plasmare secondo i tuoi desideri, garantendoti quella privacy e quella libertà che solo una proprietà di questo rango può offrire.
Entrando, sarai immediatamente accolto dal calore del parquet di pregio e dalla luce che, filtrando attraverso le ampie vetrate del salone, crea un’atmosfera di rara eleganza; potrai godere di un terrazzo angolare con vista mozzafiato sulla piana empolese, ideale per i tuoi momenti di relax o per cene indimenticabili sotto le stelle. La zona notte, pensata per il massimo comfort del tuo nucleo familiare, si articola in quattro ampie camere da letto e plurimi servizi igienici, garantendo a ogni membro della famiglia lo spazio e la riservatezza necessari.
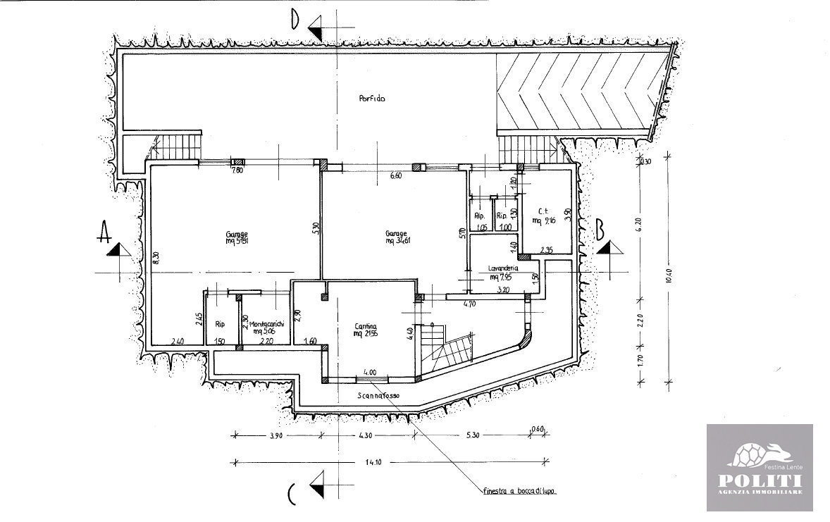
La versatilità è il vero cuore di questa proposta: al piano terra, un ampio fondo artigianale dalle altezze generose e dalla luminosità straordinaria attende solo di essere trasformato in una seconda unità abitativa indipendente, rendendo questa villa la soluzione perfetta per chi desidera vivere accanto ai propri cari pur mantenendo una totale autonomia.
Vivere a Vinci: Storia e Clima Ideale
Scegliere Sovigliana significa immergersi in una storia millenaria; il comune di Vinci non è solo la patria di Leonardo, ma un borgo che ha saputo preservare la sua identità toscana tra oliveti e vigne sin dal Medioevo, quando il castello dei Conti Guidi dominava queste valli. Il clima, mite e piacevolmente ventilato grazie alla posizione collinare che mitiga l'umidità della valle, ti permetterà di goderti il giardino in ogni stagione, offrendoti un rifugio fresco durante le estati più calde e un'esposizione solare invidiabile nei mesi invernali.
Il Confronto Strategico: Perché Empoli batte Firenze
Perché dovresti accontentarti di un appartamento in condominio, magari privo di sfogo esterno, nel caos congestionato di Firenze quando, allo stesso prezzo di un immobile di media metratura nel capoluogo, qui a Sovigliana puoi acquistare una villa indipendente con 60 mq di garage e un parco immenso? Confrontando i prezzi, appare evidente come il mercato di Empoli e Vinci offra un rapporto qualità-prezzo imbattibile: con € 930.000,00, potrai finalmente permetterti la casa dei tuoi sogni con spazi che a Firenze risulterebbero economicamente inaccessibili o relegati a contesti meno prestigiosi.
Noi dell’Agenzia Immobiliare Politi sas siamo pronti ad accompagnarti in questo viaggio: non aspettare che altri colgano questa occasione unica, contattaci oggi stesso per una visita privata.
Entrando, sarai immediatamente accolto dal calore del parquet di pregio e dalla luce che, filtrando attraverso le ampie vetrate del salone, crea un’atmosfera di rara eleganza; potrai godere di un terrazzo angolare con vista mozzafiato sulla piana empolese, ideale per i tuoi momenti di relax o per cene indimenticabili sotto le stelle. La zona notte, pensata per il massimo comfort del tuo nucleo familiare, si articola in quattro ampie camere da letto e plurimi servizi igienici, garantendo a ogni membro della famiglia lo spazio e la riservatezza necessari.
La versatilità è il vero cuore di questa proposta: al piano terra, un ampio fondo artigianale dalle altezze generose e dalla luminosità straordinaria attende solo di essere trasformato in una seconda unità abitativa indipendente, rendendo questa villa la soluzione perfetta per chi desidera vivere accanto ai propri cari pur mantenendo una totale autonomia.
Vivere a Vinci: Storia e Clima Ideale
Scegliere Sovigliana significa immergersi in una storia millenaria; il comune di Vinci non è solo la patria di Leonardo, ma un borgo che ha saputo preservare la sua identità toscana tra oliveti e vigne sin dal Medioevo, quando il castello dei Conti Guidi dominava queste valli. Il clima, mite e piacevolmente ventilato grazie alla posizione collinare che mitiga l'umidità della valle, ti permetterà di goderti il giardino in ogni stagione, offrendoti un rifugio fresco durante le estati più calde e un'esposizione solare invidiabile nei mesi invernali.
Il Confronto Strategico: Perché Empoli batte Firenze
Perché dovresti accontentarti di un appartamento in condominio, magari privo di sfogo esterno, nel caos congestionato di Firenze quando, allo stesso prezzo di un immobile di media metratura nel capoluogo, qui a Sovigliana puoi acquistare una villa indipendente con 60 mq di garage e un parco immenso? Confrontando i prezzi, appare evidente come il mercato di Empoli e Vinci offra un rapporto qualità-prezzo imbattibile: con € 930.000,00, potrai finalmente permetterti la casa dei tuoi sogni con spazi che a Firenze risulterebbero economicamente inaccessibili o relegati a contesti meno prestigiosi.
Noi dell’Agenzia Immobiliare Politi sas siamo pronti ad accompagnarti in questo viaggio: non aspettare che altri colgano questa occasione unica, contattaci oggi stesso per una visita privata.
| Pubblicato il | 09-04-2026 |
|---|---|
| Riferimento | VGCL# |
| Tipologia | CASE IN VENDITA VILLE PRESTIGIOSE |
| Stato immobile | Buone Condizioni |
| Tipo di contratto | VENDITA |
|---|---|
| Prezzo | € 930.000,00 |
| note prezzo | Prezzo Trattabile |
| Comune | Vinci |
|---|---|
| Provincia | Firenze |
| Regione | Toscana |
| Stato | Italy |
| Classe energetica | c |
|---|---|
| Locali | N. 7+ |
| Camere | N. 4 |
| Servizi | N. 4 |
| Terrazzi | N. 2 |
| Soffitte / solai | |
| Cantine | N. 1 / m² 115 |
| N. Piani | 2 |
|---|---|
| Piano di accesso | terra |
| Ingresso indipendente | |
| Ascensore |
| Garage | N. 1 / m² 120 |
|---|
| Riscaldamento | metano |
|---|---|
| Condizionamento | |
| Impianto allarme | |
| Citofoni |
| Libero |
|---|
| Giardini | m² 1000 |
|---|
[
]
[
]
]
[
] Documenti allegati
Dimensione: 134,03 KB
Dimensione: 147,69 KB
Dimensione: 265,13 KB

Plan-Piano-Primo